首页> 招标查询> 招标详情
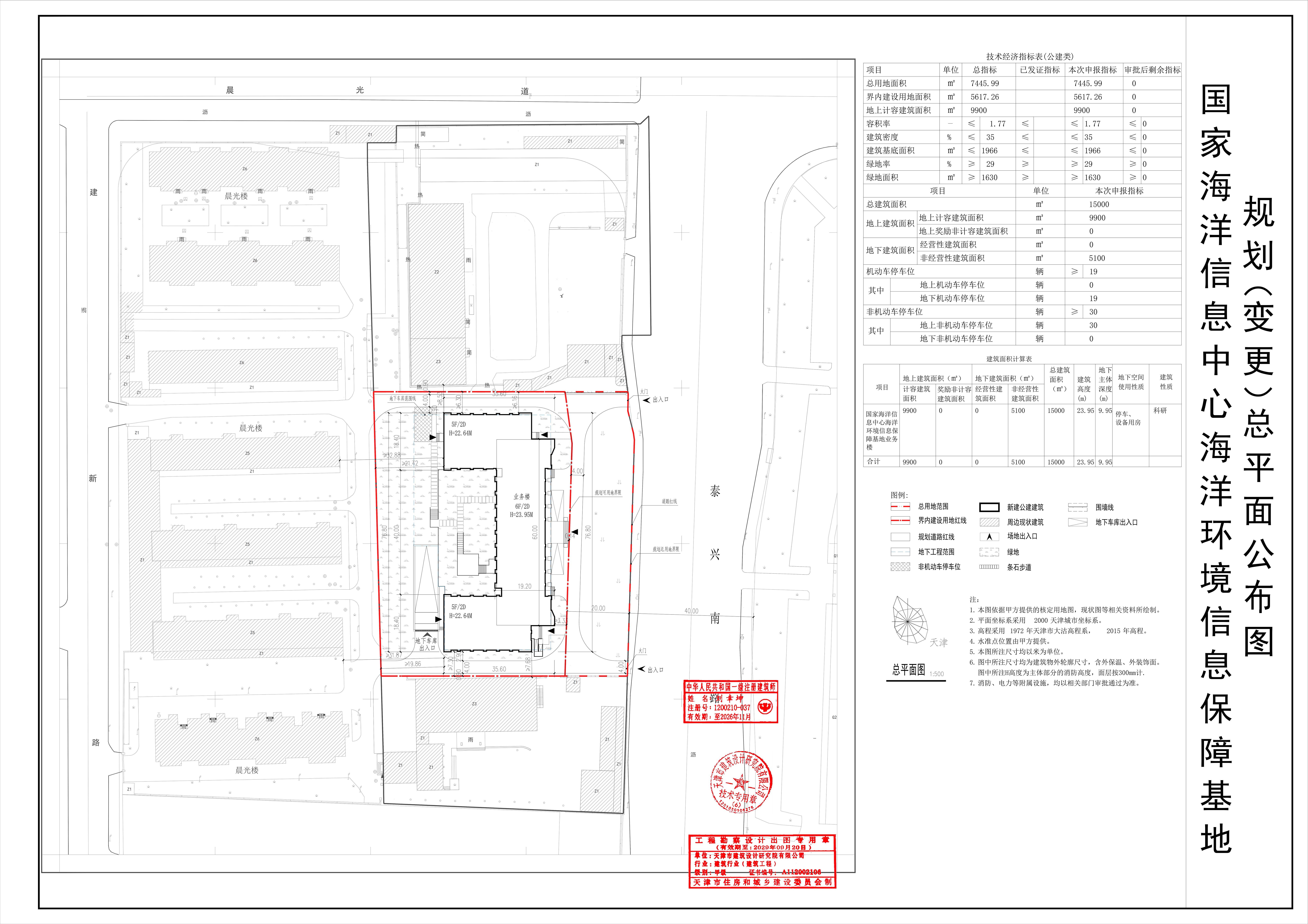
(河东区)国家海洋信息中心海洋环境信息保障基地项目建设工程设计方案(变更)总平面图的公布-审批信息
信息来源: ******[查看]
|地区:天津
|类型:审批立项
基本信息
信息类型:审批立项
区域:天津
源发布时间:2025-12-11
*符合收录标准*
正文附件下载

??******资源局河东分局于2025年12月9日核发了国家海洋信息中心海洋环境信息保障基地项目建设工程规划许可证,依据《中华人民共和国城乡规划法》及住房和城乡建设部《关于城乡规划公开公示的规定》的有关要求,现将该项目建设工程设计方案(变更)公布,公布时间至项目规划验收合格。

????????????????????????????????????????????联系电话:******

******资源局河东分局

????????????????????????????????????????????2025年12日11日




附件下载: 1 、 公布图.jpg
查看信息来源网站
马蜂快照:2025-12-11
收藏
免责声明

【1】凡本网注明来源:"马蜂盯标网"的所有文字、图片和音视频稿件,版权均属于马蜂盯标网,转载请必须注明马蜂盯标网,违反者本网将追究相关法律责任。

【2】本网转载并注明自其它来源的作品,是本着为读者传递更多信息之目的,并不代表本网赞同其观点或证实其内容的真实性,不承担此类作品侵权行为的直接责任及连带责任。其他媒体、网站或个人从本网转载时,必须保留本网注明的作品来源,并自负版权等法律责任。

【3】如涉及作品内容、版权等问题,请在作品发表之日起一周内与本网联系。

招标文件下载 x
绑定手机号码
10秒快速绑定,找项目快人一步
公司名称:*
姓名:*
关键词:
手机号:*
验证码:* 发送验证码 已发送(60s)

开通黄金会员,即可查看实时商机信息(30条/天)

每天提供100000+条招投标采购信息,随时掌握最新发布的商机,实时更新

开通地区选择
全国
浙江
黄金会员权益
查看信息(30条/天)
信息订阅(5组)
来源跳转验证(30次)
附件下载(部分正文涵盖)
铂金会员权益 (包含黄金会员权益)
查看信息(100次/天)
信息订阅(10组)
来源跳转验证(100次)
项目导出(100条)
附件下载(部分正文涵盖)
钻石会员权益 (包含铂金会员权益)
查看信息(无限制)
信息订阅(无限制)
来源跳转验证(无限制)
企业推荐
项目导出(1000条)
企业信息
标友圈
附件下载(部分正文涵盖)

抱歉,您当前会员等级权限不够!

此功能只对更高等级会员开放,立即提升会员等级!享受更多权益及功能

立即提升会员等级
订单创建成功,打开微信扫一扫完成付款

打开微信扫一扫完成付款

商品名称 暂无
订单编号 暂无
支付方式 微信支付
微信支付 ¥ 249
切换方式

切换到支付宝支付

购买即同意《马蜂盯标线上购买及服务协议》
公众号
马蜂盯标公众号

扫码关注公众号

小程序
马蜂盯标小程序

扫码打开小程序

APP
马蜂盯标app

扫码下载APP

客服
马蜂盯标客服

联系客服