首页> 招标查询> 招标详情
(宝坻区)天津宝坻惠风新能源有限公司综合楼、辅助用房项目建设工程规划许可证批后公布-审批信息
信息来源: ******[查看]
|地区:天津
|类型:审批立项
基本信息
信息类型:审批立项
区域:天津
源发布时间:2025-12-24
*符合收录标准*
正文附件下载

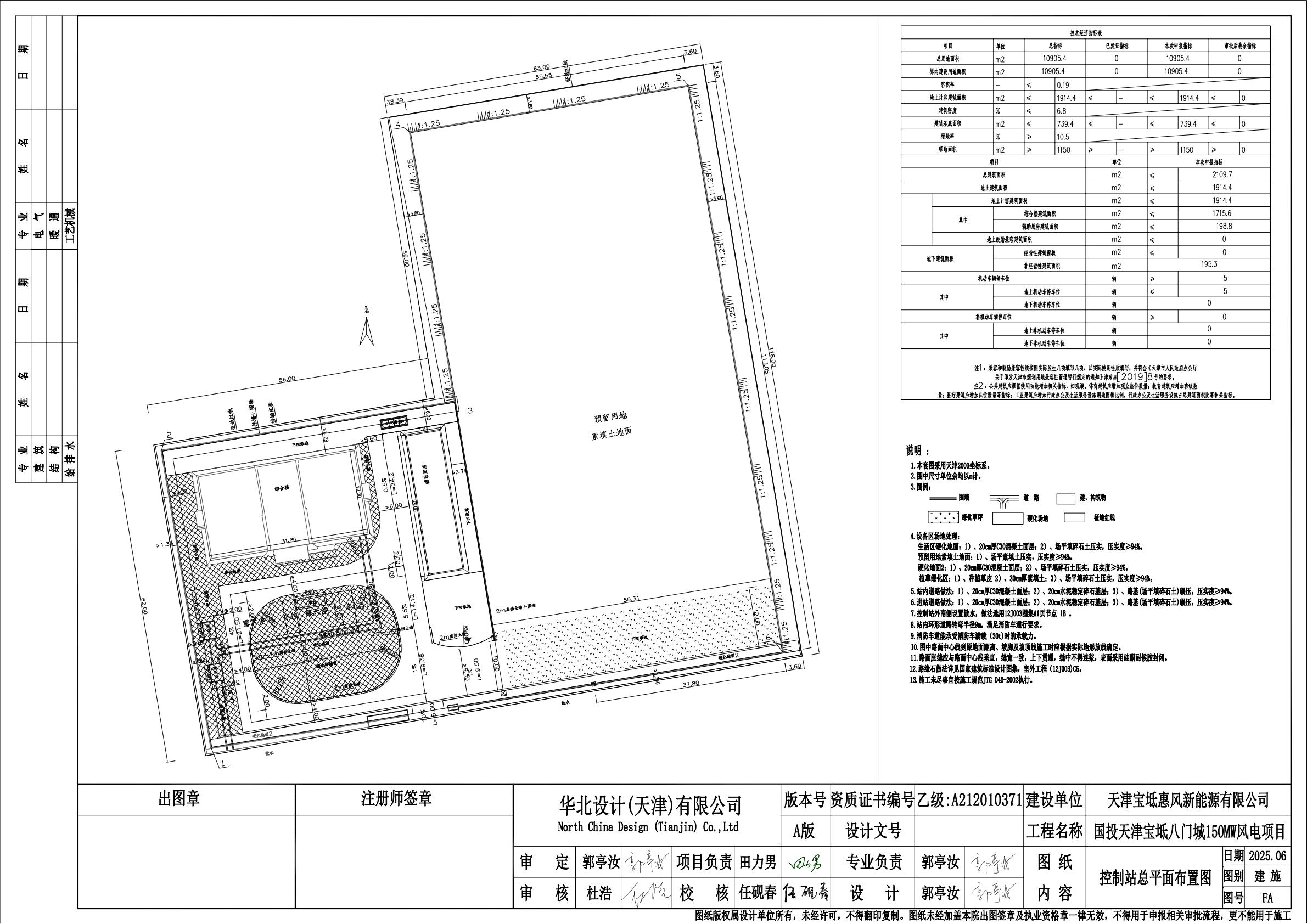
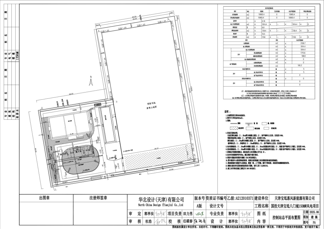
******有限公司综合楼、辅助用房项目建设工程规划许可证。依据《中华人民共和国城乡规划法》及住房和城乡建设部《关于城乡规划公开公示的规定》的有关要求,现将该项目总平面图公布,公布期限为信息发布之日起至建设项目规划验收合格为止。

******资源局宝坻分局

建议意见反馈方式:可通过电子邮箱或信件反馈 ?

******资源局宝坻分局)

邮编:301800

******


附件下载: 1 、 惠风新能源公示图.jpg
查看信息来源网站
马蜂快照:2025-12-24
收藏
免责声明

【1】凡本网注明来源:"马蜂盯标网"的所有文字、图片和音视频稿件,版权均属于马蜂盯标网,转载请必须注明马蜂盯标网,违反者本网将追究相关法律责任。

【2】本网转载并注明自其它来源的作品,是本着为读者传递更多信息之目的,并不代表本网赞同其观点或证实其内容的真实性,不承担此类作品侵权行为的直接责任及连带责任。其他媒体、网站或个人从本网转载时,必须保留本网注明的作品来源,并自负版权等法律责任。

【3】如涉及作品内容、版权等问题,请在作品发表之日起一周内与本网联系。

招标文件下载 x
绑定手机号码
10秒快速绑定,找项目快人一步
公司名称:*
姓名:*
关键词:
手机号:*
验证码:* 发送验证码 已发送(60s)

开通黄金会员,即可查看实时商机信息(30条/天)

每天提供100000+条招投标采购信息,随时掌握最新发布的商机,实时更新

开通地区选择
全国
浙江
黄金会员权益
查看信息(30条/天)
信息订阅(5组)
来源跳转验证(30次)
附件下载(部分正文涵盖)
铂金会员权益 (包含黄金会员权益)
查看信息(100次/天)
信息订阅(10组)
来源跳转验证(100次)
项目导出(100条)
附件下载(部分正文涵盖)
钻石会员权益 (包含铂金会员权益)
查看信息(无限制)
信息订阅(无限制)
来源跳转验证(无限制)
企业推荐
项目导出(1000条)
企业信息
标友圈
附件下载(部分正文涵盖)

抱歉,您当前会员等级权限不够!

此功能只对更高等级会员开放,立即提升会员等级!享受更多权益及功能

立即提升会员等级
订单创建成功,打开微信扫一扫完成付款

打开微信扫一扫完成付款

商品名称 暂无
订单编号 暂无
支付方式 微信支付
微信支付 ¥ 249
切换方式

切换到支付宝支付

购买即同意《马蜂盯标线上购买及服务协议》
公众号
马蜂盯标公众号

扫码关注公众号

小程序
马蜂盯标小程序

扫码打开小程序

APP
马蜂盯标app

扫码下载APP

客服
马蜂盯标客服

联系客服